Villa a schiera in vendita

Boffalora D'Adda, Via Lodi
€ 268.000
4 locali 4 locali
176 Mq 176 Mq
2 bagni 2 bagni

Villa a schiera in vendita

Boffalora D'Adda, Via Lodi

Descrizione annuncio

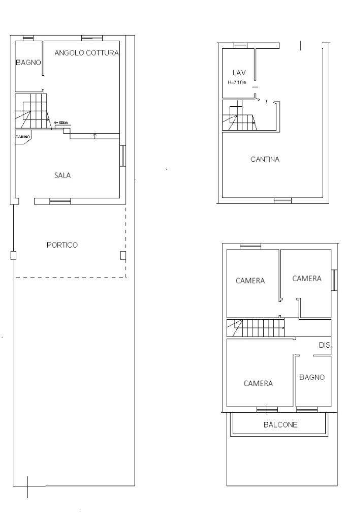
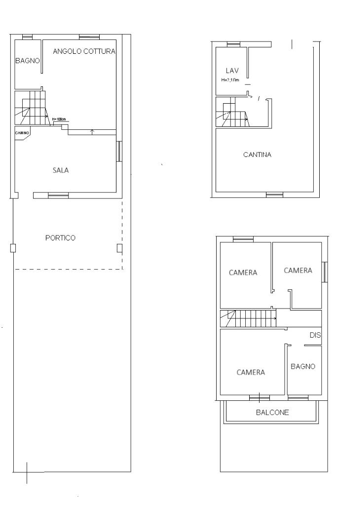
In centro paese, tutti i servizi sono raggiungibili a piedi e nelle immediate vicinanze è presente la pista ciclabile. La villa è stata costruita negli anni '80 e non era mai stata abitata, nel 2025 è stata completamente ristrutturata adottando le normative in materia di risparmio energetico con l'utilizzo della caldaia a condensazione e serramenti di ultima generazione, inoltre è presente la predisposizione per l'impianto di aria condizionata. La villa è laterale ed ha un giardino di proprietà davanti all'ingresso di circa 80 mq ed uno a lato da 100 mq, accanto al posto auto doppio che è possibile acquistare a parte ad euro 10.000. Davanti all'ingresso è presente un porticato di 25 mq in cui è possibile pranzare o rilassarsi nelle calde serate estive. L'ingresso è nella zona living, un ambiente ampio e diviso in due zone con un dislivello di qualche gradino tra una e l'altra. Nella zona living è presente un camino e la cucina è a vista, sullo stesso piano c'è il bagno con la doccia. Una comoda scala in muratura accompagna al primo piano dove si trovano tre camere da letto e un bagno. Completa la proprietà il box auto compreso nel prezzo.

Mostra tutto

Nelle vicinanze

Trasporto pubblico Trasporto pubblico
Trasporto pubblico
1,5 Km
Scuole Scuole
Scuola elementare Sandro Pertini
300 m
Scuola primaria Giovanni Agnelli
3,0 Km
Ristoranti Ristoranti
La Cava
2,3 Km
Mostra tutto

Caratteristiche

Rif.:
61166874
Piano:
Su più livelli di 2
Totale piani:
2
Box:
1
Balconi:
1
Camere da letto:
3
Mostra tutto
Prezzo Prezzo
€ 268.000
Rata mutuo Rata mutuo
€ 1.263 / mese
Spese annue Spese annue
€ 0
Proponi il tuo prezzoProponi il tuo prezzo

Classe Energetica

B
B
B
B
B
B
B
B
B
EP globale non rinnovabile:
107.43 kW h/m² anno
EP globale rinnovabile:
18.37 kW h/m² anno
EP invernale del fabbricato:
EP estiva del fabbricato:
Anno di costruzione:
1980
Riscaldamento:
Autonomo
Tipo impianto:
A radiatori
Tipo alimentazione:
Metano

Ti interessa visionare l'immobile?

Fissa un appuntamento  Fissa un appuntamento

Richiedi informazioni

Clicca su Leggi per aprire l'informativa
* Questi campi sono obbligatori

Calcola il tuo mutuo

Semplice e senza impegno
Anticipo

( % )
Mutuo

( % )

pochi semplici passi

inserisci i tuoi dati
Questionario completato
Grazie per aver richiesto un appuntamento senza impegno con un nostro Consulente del Credito e Assicurativo.

Hai inserito correttamente tutti i dati necessari e a breve riceverai una e-mail con un link da convalidare per inviare i tuoi dati.
Affiliato
Tecnoteam Srl
Via Dante, 47 26839 Zelo Buon Persico (LO)
Via Dante, 47 26839 Zelo Buon Persico (LO)
Zona: Zelo B.P.-Merlino-Comazzo-Spino d'Adda-Boffalora D'Adda-Dovera
Mostra su mappa
Orari: dal lunedì al venerdì 09.00-12.30 e 14.30-20.30; sabato 9:00 -12:30 e 14:30 -18:00; domenica su appuntamento.
Affiliato
Tecnoteam Srl
Via Dante, 47 26839 Zelo Buon Persico (LO)

2026 Tecnocasa Franchising S.p.A. - P. IVA 08365160152 - Via Monte Bianco 60/A 20089 Rozzano (MI). Ogni agenzia ha un proprio titolare ed è autonoma. Privacy policy | Policy utilizzo | Cookie policy