Villa a schiera in vendita

Comazzo, Via pertini
€ 268.000
4 locali 4 locali
134 Mq 134 Mq
3 bagni 3 bagni

Villa a schiera in vendita

Comazzo, Via pertini

Descrizione annuncio

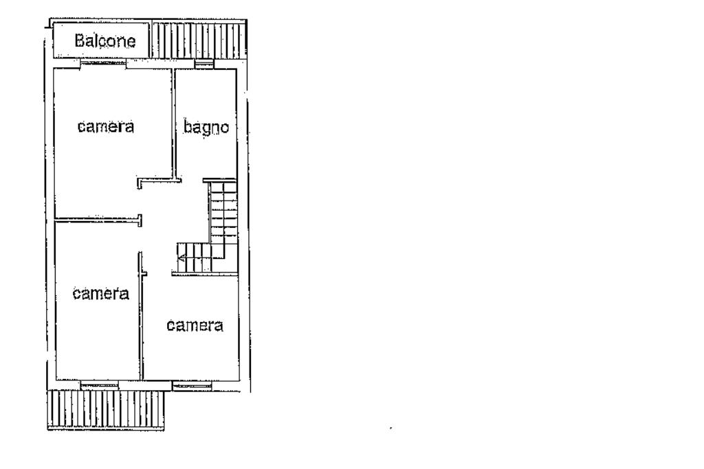
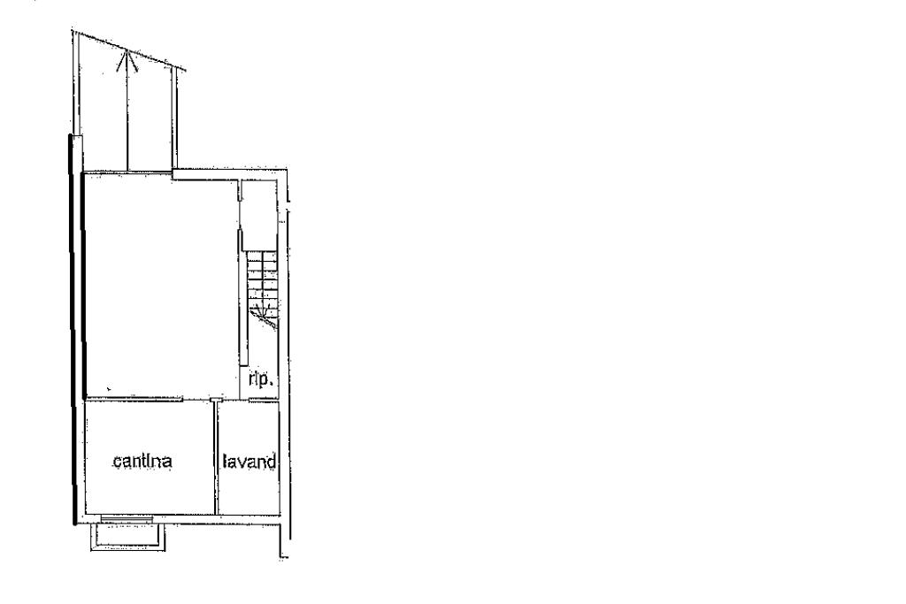
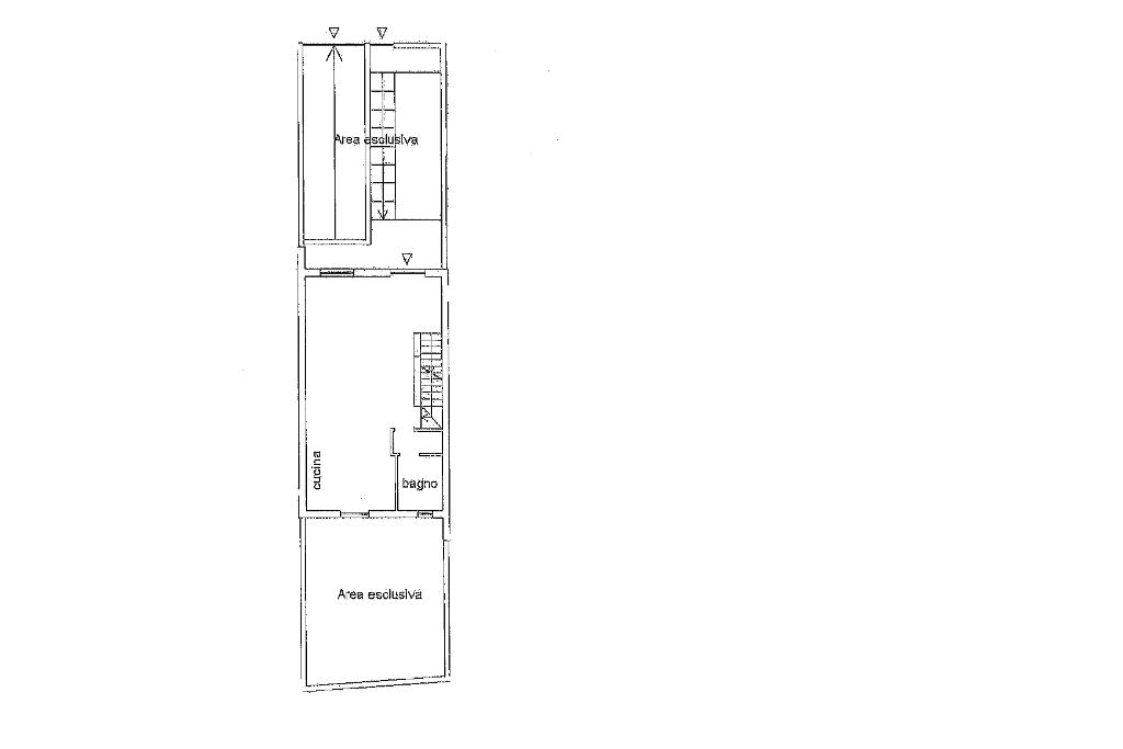
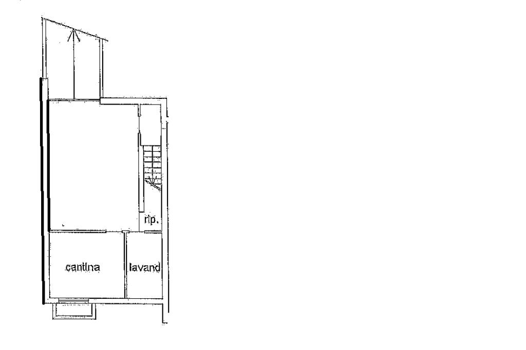
In una zona residenziale tranquilla e di sole villette. La casa è stata costruita alla fine degli anni '90 e nel corso degli anni è stata oggetto di diversi lavori di ristrutturazione. Nel 2024 è stato rifatto il tetto e poco prima sono state cambiate le porte interne e la portafinestra d'ingresso del piano terra e del piano interrato, è stato montato l'impianto fotovoltaico con pompa di calore e boiler elettrico, l'impianto di aria condizionata fredda e calda. Nel complesso la villa si presenta in ottimo stato e non necessita di lavori. Dal piano strada qualche scalino accompagna al porticato davanti al portoncino d'ingresso. L'ingresso è nella zona living, un ambiente ampio e luminoso con cucina angolare a vista con penisola, lo spazio permette di fare lunghe tavolate e accogliere ospiti comodamente, dimensioni difficili da trovare in altre abitazioni, inoltre la doppia esposizione rende l'ambiente fresco d'estate e luminoso. La portafinestra presente in cucina accompagna al giardino posteriore, uno spazio godibile e piastrellato che non richiede troppa manutenzione. Sullo stesso piano della zona giorno c'è un bagno di servizio. Dalla sala una scala in marmo e muratura accompagna al primo piano, dove si trovano due camerette, una camera da letto matrimoniale con balcone ed il bagno con la doccia. Al piano seminterrato un locale openspace con una vetrata che affaccia sul cortile anteriore. Questo spazio è versatile ed elegante, curato nel dettaglio, confortevole e dotato di un locale lavanderia e un locale hobby ad uso cantina. La villa è un'abitazione adatta a chi necessita di spazio, inoltre è presente un posto auto nella rampa che accompagna alla taverna.

Mostra tutto

Nelle vicinanze

Trasporto pubblico Trasporto pubblico
Trasporto pubblico
270 m
Scuole Scuole
Scuole
390 m
Scuola Elementare
2,7 Km
Negozi Negozi
Negozi
260 m
Bar Bar
Bar
2,1 Km
Ristoranti Ristoranti
Adda Lido di Albasi Paolo
1,7 Km
Trattoria dei Cacciatori
2,0 Km
Bar Tabacchi e Ristorante Pizzeria
2,6 Km
Ristoranti
2,6 Km
Mostra tutto

Caratteristiche

Rif.:
61111192
Piano:
Su più livelli di 3
Totale piani:
3
Balconi:
2
Camere da letto:
3
Arredamento:
Assente
Mostra tutto
Prezzo Prezzo
€ 268.000
Rata mutuo Rata mutuo
€ 1.249 / mese
Spese annue Spese annue
€ 0
Proponi il tuo prezzoProponi il tuo prezzo

Classe Energetica

C
C
C
C
C
C
C
C
C
EP globale non rinnovabile:
53.64 kW h/m² anno
EP globale rinnovabile:
0.00 kW h/m² anno
EP invernale del fabbricato:
EP estiva del fabbricato:
Anno di costruzione:
1997
Riscaldamento:
Autonomo
Tipo impianto:
A radiatori
Tipo alimentazione:
Altro

Ti interessa visionare l'immobile?

Fissa un appuntamento  Fissa un appuntamento

Richiedi informazioni

Clicca su Leggi per aprire l'informativa
* Questi campi sono obbligatori

Calcola il tuo mutuo

Semplice e senza impegno
Anticipo

( % )
Mutuo

( % )

pochi semplici passi

inserisci i tuoi dati
Questionario completato
Grazie per aver richiesto un appuntamento senza impegno con un nostro Consulente del Credito e Assicurativo.

Hai inserito correttamente tutti i dati necessari e a breve riceverai una e-mail con un link da convalidare per inviare i tuoi dati.
Affiliato
Tecnoteam Srl
Via Dante, 47 26839 Zelo Buon Persico (LO)
Via Dante, 47 26839 Zelo Buon Persico (LO)
Zona: Zelo B.P.-Merlino-Comazzo-Spino d'Adda-Boffalora D'Adda-Dovera
Mostra su mappa
Orari: dal lunedì al venerdì 09.00-12.30 e 14.30-20.30; sabato 9:00 -12:30 e 14:30 -18:00; domenica su appuntamento.
Affiliato
Tecnoteam Srl
Via Dante, 47 26839 Zelo Buon Persico (LO)

2025 Tecnocasa Franchising S.p.A. - P. IVA 08365160152 - Via Monte Bianco 60/A 20089 Rozzano (MI). Ogni agenzia ha un proprio titolare ed è autonoma. Privacy policy | Policy utilizzo | Cookie policy