Casa indipendente in vendita

Dovera, Vicolo Siberia - Postino
€ 130.000
3 locali 3 locali
118 Mq 118 Mq
1 bagno 1 bagno

Casa indipendente in vendita

Dovera, Vicolo Siberia - Postino

Descrizione annuncio

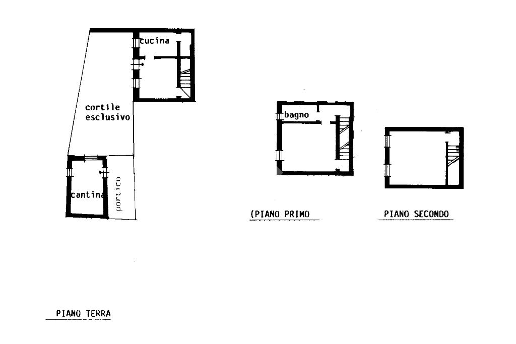
Postino di Dovera, una zona tranquilla e abitata da famiglie, all'interno di una via chiusa. Questa casa indipendente è stata costruita negli anni '60 e nel 1996 è stata ristrutturata totalmente per la prima volta, nel 2012 il bagno e gli impianti sono stati rifatti nel 2012, mentre nel2022 sono stati sostituiti i serramenti e la porta d'ingresso, tutti in pvc con triplo vetro, inoltre trattandosi di una costruzione con mura molto spesse, in estate dentro casa non occorre il condizionatore in quanto la casa risulta fresca. L'ingresso alla proprietà è dal cancello principale che dà accesso al cortile privato dove è resente una cantina con solaio di 35 mq, e dove è presente un posto auto coperto. Il cortile è uno spazio piacevole di circa 50 mq in cui è possibile pranzare nella bella stagione. L'abitazione è disposta su due piani, al piano terra la sala con cucina a v vista e un ripostiglio/dispensa ricavato nel sottoscala. Al primo piano una camera da letto e un bagno, al secondo piano un altra camera da letto in cui sono già stati predisposti gli impianti per il secondo bagno. Chiaramente si tratta di una soluzione senza spese condominiali, in ottimo stato e pronta per essere abitata.

Mostra tutto

Nelle vicinanze

Trasporto pubblico Trasporto pubblico
Trasporto pubblico
100 m
Ricariche auto elettriche Ricariche auto elettriche
Dovera Gargioni | BECHARGE
1,3 Km
Scuole Scuole
Scuole
390 m
Scuola Elementare e Media Statale G. Marconi
870 m
Scuola elementare Maria Moretti
1,8 Km
Farmacia Farmacia
Farmacia Damioli
1,3 Km
Farmacia
1,8 Km
Farmacia
2,1 Km
Supermercati Supermercati
Supermercati
110 m
Il Becco d'Oca
1,0 Km
Negozi Negozi
La Bottega del Gusto
1,0 Km
La Piazzetta
1,7 Km
Rosi & Ari
1,7 Km
Bar Bar
Bar Centrale
2,0 Km
Ristoranti Ristoranti
Pizzeria Kebab Postino
110 m
Regina Margherita
1,0 Km
San Lorenzo
1,0 Km
Nuovo Centauro
1,3 Km
Il Torchio
1,7 Km
Mostra tutto

Caratteristiche

Rif.:
61173747
Piano:
Su più livelli di 2
Totale piani:
2
Posti auto:
1
Camere da letto:
2
Arredamento:
Assente
Mostra tutto
Prezzo Prezzo
€ 130.000
Rata mutuo Rata mutuo
€ 613 / mese
Spese annue Spese annue
€ 0
Proponi il tuo prezzoProponi il tuo prezzo

Classe Energetica

D
D
D
D
D
D
D
D
D
EP globale non rinnovabile:
112.13 kW h/m² anno
EP globale rinnovabile:
0.00 kW h/m² anno
EP invernale del fabbricato:
EP estiva del fabbricato:
Anno di costruzione:
1967
Riscaldamento:
Autonomo
Tipo impianto:
A radiatori
Tipo alimentazione:
Metano

Ti interessa visionare l'immobile?

Fissa un appuntamento  Fissa un appuntamento

Richiedi informazioni

Clicca su Leggi per aprire l'informativa
* Questi campi sono obbligatori

Calcola il tuo mutuo

Semplice e senza impegno
Anticipo

( % )
Mutuo

( % )

pochi semplici passi

inserisci i tuoi dati
Questionario completato
Grazie per aver richiesto un appuntamento senza impegno con un nostro Consulente del Credito e Assicurativo.

Hai inserito correttamente tutti i dati necessari e a breve riceverai una e-mail con un link da convalidare per inviare i tuoi dati.
Affiliato
Tecnoteam Srl
Via Dante, 47 26839 Zelo Buon Persico (LO)

Il nostro staff


  • Fulvio Cattolico
    Affiliato

  • Laura Capizzi
    Coordinatrice

  • Marco D'Esposito
    Collaboratore

  • Nancy Cariglino
    Coordinatrice

  • Mercurio Castrogiovanni
    Collaboratore

  • Cinzia Aguggini
    Coordinatrice

  • Federico Asti
    Collaboratore
Via Dante, 47 26839 Zelo Buon Persico (LO)
Zona: Zelo B.P.-Merlino-Comazzo-Spino d'Adda-Boffalora D'Adda-Dovera
Mostra su mappa
Orari: dal lunedì al venerdì 09.00-12.30 e 14.30-20.30; sabato 9:00 -12:30 e 14:30 -18:00; domenica su appuntamento.
Affiliato
Tecnoteam Srl
Via Dante, 47 26839 Zelo Buon Persico (LO)

2026 Tecnocasa Franchising S.p.A. - P. IVA 08365160152 - Via Monte Bianco 60/A 20089 Rozzano (MI). Ogni agenzia ha un proprio titolare ed è autonoma. Privacy policy | Policy utilizzo | Cookie policy