Villa singola in vendita

Dovera, Via S. Rocco
€ 238.000
4 locali 4 locali
158 Mq 158 Mq
2 bagni 2 bagni

Villa singola in vendita

Dovera, Via S. Rocco

Descrizione annuncio

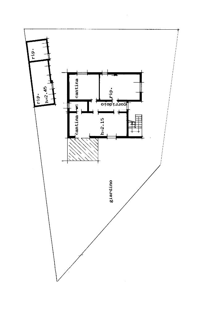
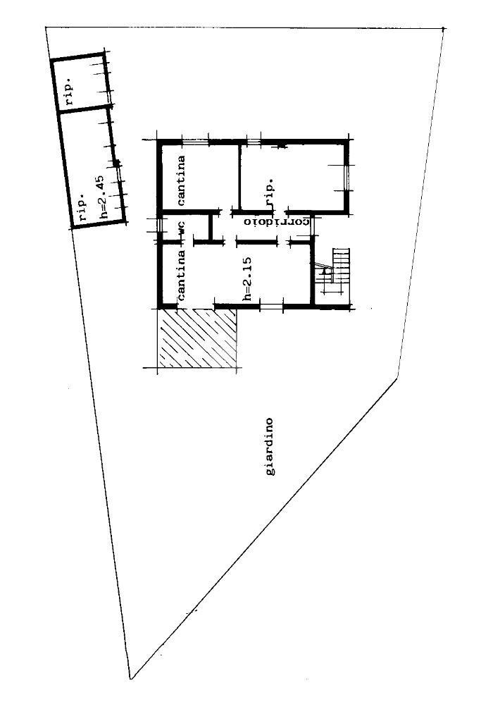
Nel comune di Dovera, nelle campagne al confine con Corte Palasio, Lodi. La zona è tranquilla e adatta a chi cerca pace. La villa è stata edificata negli anni'60 ed è libera subito, si tratta di una soluzione libera su quattro lati con giardino privato e orto. Disposta su due piani, il primo piano è ad uso abitativo, il piano terra ad uso cantina/taverna, totalmente finestrato e con bagno/lavanderia, uno spazio versatile e utile per liberi professionisti che necessitano di uno spazio da dedicare alla propria professione oppure per persone che hanno bisogno di spazio per i propri hobby o di creare una 'depandance' nella taverna. Al primo piano la casa è ben tenuta e potrebbe essere abitata senza la necessità di eseguire lavori, questo perchè nel corso degli anni la casa è sempre stata oggetto di cure e lavori di manutenzione ordinaria e straordinaria volti a mantenerne un'ottimo stato conservativo. L'ingresso è nel disimpegno che accompagna a tutte le stanze, ci sono il tinello con cucinino, tre camere e un bagno. Qualora si volesse ristrutturare si potrebbero distribuire gli spazi in diversi modi adattandoli alle esigenze personali. L'area esterna misura circa 250 Mq, è presente il box auto, i serramenti sono in alluminio con doppi vetri e alcuni dei srramenti esterni sono stati da poco sostituiti.

Mostra tutto

Nelle vicinanze

Trasporto pubblico Trasporto pubblico
Trasporto pubblico
1,1 Km
Ricariche auto elettriche Ricariche auto elettriche
Dovera Gargioni | BECHARGE
1,8 Km
Scuole Scuole
Scuola Elementare e Media Statale G. Marconi
1,2 Km
Scuole
1,3 Km
Scuola elementare Maria Moretti
2,0 Km
Farmacia Farmacia
Farmacia Damioli
1,4 Km
Farmacia
2,0 Km
Supermercati Supermercati
Supermercati
1,1 Km
Il Becco d'Oca
1,3 Km
Negozi Negozi
La Bottega del Gusto
1,4 Km
Rosi & Ari
2,0 Km
La Piazzetta
2,0 Km
Bar Bar
Bar Centrale
2,9 Km
Ristoranti Ristoranti
Pizzeria Kebab Postino
1,1 Km
Regina Margherita
1,3 Km
San Lorenzo
1,4 Km
Scacco Matto
1,7 Km
Nuovo Centauro
1,8 Km
Mostra tutto

Caratteristiche

Rif.:
61125383
Piano:
Su più livelli di 2
Totale piani:
2
Box:
1
Balconi:
1
Camere da letto:
3
Mostra tutto
Prezzo Prezzo
€ 238.000
Rata mutuo Rata mutuo
€ 1.109 / mese
Spese annue Spese annue
€ 0
Proponi il tuo prezzoProponi il tuo prezzo

Classe Energetica

G
G
G
G
G
G
G
G
G
EP globale non rinnovabile:
190.15 kW h/m² anno
EP globale rinnovabile:
0.00 kW h/m² anno
EP invernale del fabbricato:
EP estiva del fabbricato:
Anno di costruzione:
1967
Riscaldamento:
Autonomo
Tipo impianto:
A radiatori
Tipo alimentazione:
Metano

Ti interessa visionare l'immobile?

Fissa un appuntamento  Fissa un appuntamento

Richiedi informazioni

Clicca su Leggi per aprire l'informativa
* Questi campi sono obbligatori

Calcola il tuo mutuo

Semplice e senza impegno
Anticipo

( % )
Mutuo

( % )

pochi semplici passi

inserisci i tuoi dati
Questionario completato
Grazie per aver richiesto un appuntamento senza impegno con un nostro Consulente del Credito e Assicurativo.

Hai inserito correttamente tutti i dati necessari e a breve riceverai una e-mail con un link da convalidare per inviare i tuoi dati.
Affiliato
Tecnoteam Srl
Via Dante, 47 26839 Zelo Buon Persico (LO)
Via Dante, 47 26839 Zelo Buon Persico (LO)
Zona: Zelo B.P.-Merlino-Comazzo-Spino d'Adda-Boffalora D'Adda-Dovera
Mostra su mappa
Orari: dal lunedì al venerdì 09.00-12.30 e 14.30-20.30; sabato 9:00 -12:30 e 14:30 -18:00; domenica su appuntamento.
Affiliato
Tecnoteam Srl
Via Dante, 47 26839 Zelo Buon Persico (LO)

2025 Tecnocasa Franchising S.p.A. - P. IVA 08365160152 - Via Monte Bianco 60/A 20089 Rozzano (MI). Ogni agenzia ha un proprio titolare ed è autonoma. Privacy policy | Policy utilizzo | Cookie policy