Casa semindipendente in vendita

Mulazzano, Via Quartiano
€ 258.000
3 locali 3 locali
153 Mq 153 Mq
2 bagni 2 bagni

Casa semindipendente in vendita

Mulazzano, Via Quartiano

Descrizione annuncio

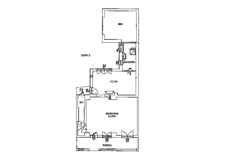
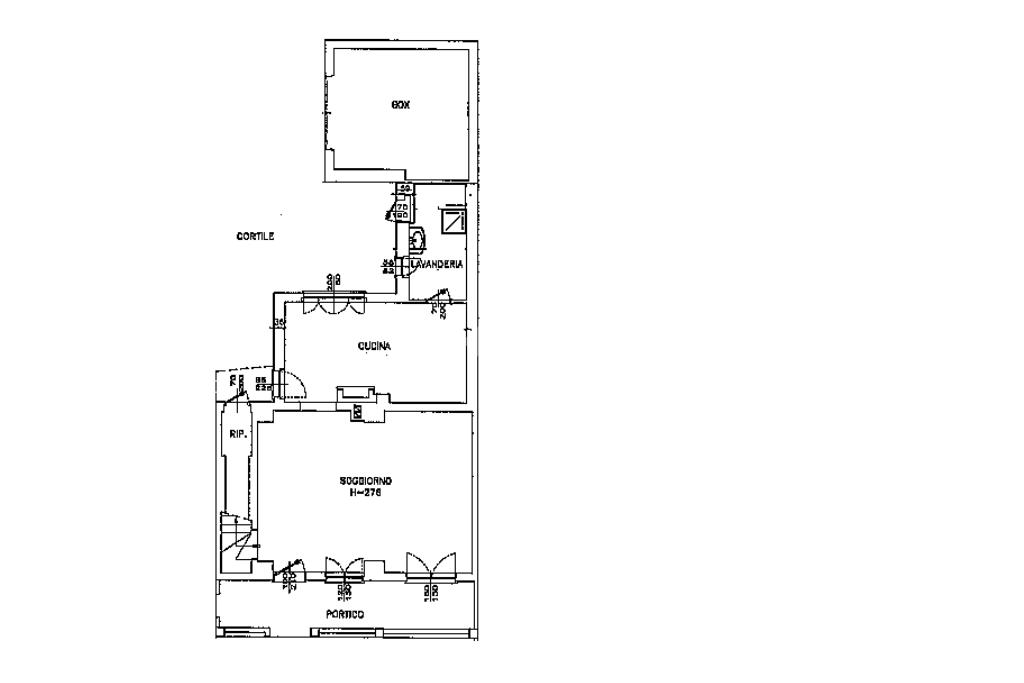
In centro paese, una posizione tranquilla e non isolata, ben illuminata anche di sera. La casa è stata oggetto di diverse opere di ristrutturazione e manutenzione straordinaria dal 2012 ad oggi. Nel corso degli anni sono stati sostituiti i serramenti, che sono in alluminio e con doppi vetri, sono stati rifatti i bagni, è stata sostituita la caldaia e nel 2020 è stato rifatto il tetto. L'abitazione è circondata dal suo giardino privato, in parte verde e in parte piastrellato, ed è distribuita su due piani. Nel giardino anteriore c'è lo spazio per parcheggiare l'auto ed è presente un albero sul quale è stata costruita una casetta, il sogno di ogni piccolo bambino. Il porticato davanti al portoncino d'ingresso è uno spazio utile per riporre le biciclette o riposare nelle stagioni più calde. L'ingresso è nel salone doppio, luminoso e ampio, adatto per chi ama organizzare momenti di convivialità a casa propria. Dal salone si accede alla cucina bitabile in muratura con le finestre che affacciano sul giardino posteriore. La cucina è collegata alla lavanderia ed al locale hobby. Il locale hobby ha anche ingresso indipendente dal giardino, quindi è possibile utilizzarla come depandance (dato che è collegata alla lavanderia) o come studio per chi esercita la libera professione. Dalla sala una scala in muratura accompagna al primo piano dove si trovano due camere da letto e un bagno. Nel sottoscala è presente un ripostiglio Le camere sono entrambe spaziose e con la portafinestra che dà accesso al balcone. Sia al piano terra che al primo piano è presente la stufa a pellet. Il giardino, nella parte posteriore ospita una casetta degli attrezzi. Nel complesso la casa si presenta bene ed è pronta per essere abitata.

Mostra tutto

Nelle vicinanze

Trasporto pubblico Trasporto pubblico
Trasporto pubblico
460 m
Scuole Scuole
Scuola media Antonio Gramsci
120 m
Scuola elementare Alessandro Manzoni
170 m
Scuola elementare Franco Marmont Du Haut Champ
1,9 Km
Farmacia Farmacia
Farmacia
70 m
Mostra tutto

Caratteristiche

Rif.:
61151128
Piano:
Su più livelli di 2
Totale piani:
2
Balconi:
2
Camere da letto:
2
Arredamento:
Assente
Mostra tutto
Prezzo Prezzo
€ 258.000
Rata mutuo Rata mutuo
€ 1.216 / mese
Spese annue Spese annue
€ 0
Proponi il tuo prezzoProponi il tuo prezzo

Classe Energetica

C
C
C
C
C
C
C
C
C
EP invernale del fabbricato:
EP estiva del fabbricato:
Anno di costruzione:
1967
Riscaldamento:
Autonomo
Tipo impianto:
A radiatori
Tipo alimentazione:
Metano

Ti interessa visionare l'immobile?

Fissa un appuntamento  Fissa un appuntamento

Richiedi informazioni

Clicca su Leggi per aprire l'informativa
* Questi campi sono obbligatori

Calcola il tuo mutuo

Semplice e senza impegno
Anticipo

( % )
Mutuo

( % )

pochi semplici passi

inserisci i tuoi dati
Questionario completato
Grazie per aver richiesto un appuntamento senza impegno con un nostro Consulente del Credito e Assicurativo.

Hai inserito correttamente tutti i dati necessari e a breve riceverai una e-mail con un link da convalidare per inviare i tuoi dati.
Affiliato
Tecnoteam Srl
Via Dante, 47 26839 Zelo Buon Persico (LO)

Il nostro staff


  • Fulvio Cattolico
    Affiliato

  • Laura Capizzi
    Coordinatrice

  • Marco D'Esposito
    Collaboratore

  • Nancy Cariglino
    Coordinatrice

  • Mercurio Castrogiovanni
    Collaboratore

  • Cinzia Aguggini
    Coordinatrice

  • Federico Asti
    Collaboratore
Via Dante, 47 26839 Zelo Buon Persico (LO)
Zona: Zelo B.P.-Merlino-Comazzo-Spino d'Adda-Boffalora D'Adda-Dovera
Mostra su mappa
Orari: dal lunedì al venerdì 09.00-12.30 e 14.30-20.30; sabato 9:00 -12:30 e 14:30 -18:00; domenica su appuntamento.
Affiliato
Tecnoteam Srl
Via Dante, 47 26839 Zelo Buon Persico (LO)

2026 Tecnocasa Franchising S.p.A. - P. IVA 08365160152 - Via Monte Bianco 60/A 20089 Rozzano (MI). Ogni agenzia ha un proprio titolare ed è autonoma. Privacy policy | Policy utilizzo | Cookie policy