Villa a schiera in vendita

Spino D'Adda, Via Guglielmo Marconi
€ 395.000
4 locali 4 locali
185 Mq 185 Mq
2 bagni 2 bagni

Villa a schiera in vendita

Spino D'Adda, Via Guglielmo Marconi

Descrizione annuncio

VILLA LATERALE DI NUOVA COSTRUZIONE, CONSEGNA PREVISTA A DICEMBRE 2026

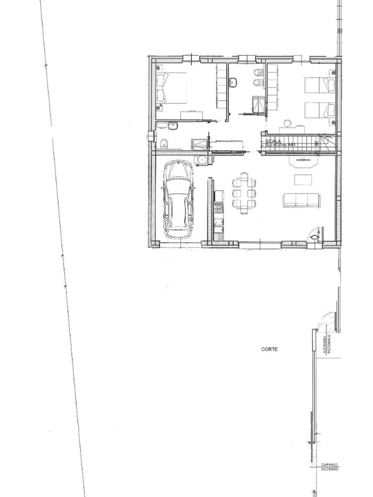
La villa laterale di nuova costruzione presenta una singolare opportunità per chi desidera un'abitazione moderna e funzionale, disposta su un unico piano. Questa soluzione abitativa è ideale per famiglie o per chi cerca un ambiente spazioso e pratico. L'ingresso conduce a una spaziosa zona giorno, luminosa e accogliente, che può essere personalizzata secondo le proprie esigenze. La cucina, open space o separata, può facilmente integrarsi con il soggiorno creando un ambiente conviviale. Inoltre, sono previsti ampi spazi per le camere da letto, tutte ben illuminate e confortevoli. Un aspetto particolarmente interessante è la possibilità di sfruttare il piano mansardato. Questo spazio aggiuntivo consente di creare una zona notte supplementare, perfetta per ospiti o come studio. La mansarda offre un'ulteriore opportunità di personalizzazione, permettendo di realizzare un ambiente su misura secondo le proprie necessità. Gli esterni della villa sono altrettanto attraenti, con un giardino privato di ampia metratura che offre uno spazio all’aperto dove poter trascorrere momenti di relax o organizzare incontri con amici e famiglia. La posizione laterale della villa garantisce tranquillità e privacy, pur mantenendo una buona accessibilità ai servizi e alle infrastrutture locali. In sintesi, questa villa laterale rappresenta non solo un investimento in un'abitazione moderna e confortevole, ma anche la possibilità di personalizzare gli spazi secondo le proprie esigenze, sia nel piano principale che nel piano mansardato.

LAVORI GIA' INIZIATI.

Mostra tutto

Nelle vicinanze

Trasporto pubblico Trasporto pubblico
Trasporto pubblico
810 m
Ricariche auto elettriche Ricariche auto elettriche
Centro Sportivo Comunale di Spino d'Adda | EnelX
740 m
Spino d'Adda | EnelX Rosselli
1,7 Km
Spino d'Adda Ragazzi del '99 | EnelX
1,9 Km
Scuole Scuole
Scuola media L. Chiesa
1,8 Km
Supermercati Supermercati
Supermercati
1,1 Km
MD Discount
2,6 Km
Ristoranti Ristoranti
Ristoranti
420 m
Adda Lido di Albasi Paolo
2,5 Km
Mostra tutto

Caratteristiche

Rif.:
61029398
Piano:
Su più livelli di 2
Totale piani:
2
Box:
1
Camere da letto:
3
Arredamento:
Assente
Mostra tutto
Prezzo Prezzo
€ 395.000
Rata mutuo Rata mutuo
€ 1.862 / mese
Spese annue Spese annue
€ 0
Proponi il tuo prezzoProponi il tuo prezzo

Classe Energetica

A3
A3
A3
A3
A3
A3
A3
A3
A3
EP globale non rinnovabile:
35.10 kW h/m² anno
EP globale rinnovabile:
10.00 kW h/m² anno
EP invernale del fabbricato:
EP estiva del fabbricato:
Anno di costruzione:
2025
Riscaldamento:
Autonomo
Tipo impianto:
A radiatori
Tipo alimentazione:
Pannelli

Ti interessa visionare l'immobile?

Fissa un appuntamento  Fissa un appuntamento

Richiedi informazioni

Clicca su Leggi per aprire l'informativa
* Questi campi sono obbligatori

Calcola il tuo mutuo

Semplice e senza impegno
Anticipo

( % )
Mutuo

( % )

pochi semplici passi

inserisci i tuoi dati
Questionario completato
Grazie per aver richiesto un appuntamento senza impegno con un nostro Consulente del Credito e Assicurativo.

Hai inserito correttamente tutti i dati necessari e a breve riceverai una e-mail con un link da convalidare per inviare i tuoi dati.
Affiliato
Tecnoteam Srl
Via Dante, 47 26839 Zelo Buon Persico (LO)

Il nostro staff


  • Fulvio Cattolico
    Affiliato

  • Laura Capizzi
    Coordinatrice

  • Marco D'Esposito
    Collaboratore

  • Nancy Cariglino
    Coordinatrice

  • Mercurio Castrogiovanni
    Collaboratore

  • Cinzia Aguggini
    Coordinatrice

  • Federico Asti
    Collaboratore
Via Dante, 47 26839 Zelo Buon Persico (LO)
Zona: Zelo B.P.-Merlino-Comazzo-Spino d'Adda-Boffalora D'Adda-Dovera
Mostra su mappa
Orari: dal lunedì al venerdì 09.00-12.30 e 14.30-20.30; sabato 9:00 -12:30 e 14:30 -18:00; domenica su appuntamento.
Affiliato
Tecnoteam Srl
Via Dante, 47 26839 Zelo Buon Persico (LO)

2026 Tecnocasa Franchising S.p.A. - P. IVA 08365160152 - Via Monte Bianco 60/A 20089 Rozzano (MI). Ogni agenzia ha un proprio titolare ed è autonoma. Privacy policy | Policy utilizzo | Cookie policy