Porzione di bifamiliare in vendita

Spino D'Adda, Via olanda
€ 318.000
5 locali 5 locali
159 Mq 159 Mq
2 bagni 2 bagni

Porzione di bifamiliare in vendita

Spino D'Adda, Via olanda

Descrizione annuncio

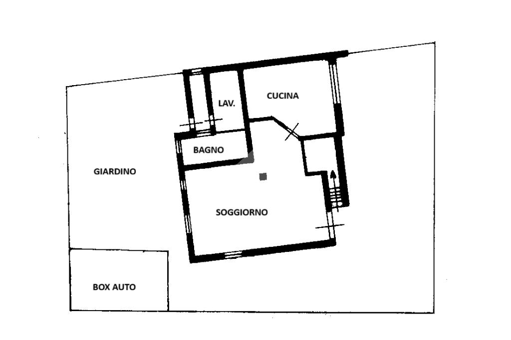
PORZIONE DI BIFAMIGLIARE ADATTA A DUE FAMIGLIE

In Via Olanda, il centro del paese è raggiungibile in pochi minuti, la zona, di sole ville, è tranquilla e ben abitata. Costruita alla fine degli anni '60, a partire dal 2009 è stata oggetto di lavori volti all'efficientamento energetico della struttura. Tra i lavori eseguiti sono presenti il cappotto termico,i serramenti interni ed esterni, l'impianto fotovoltaico da 3 KW, inoltre è stato installato il sistema di videosorveglianza. La casa è disposta su due piani, attualmente uniti da scala interna, anche se ogni piano ha anche ingresso indipendente, è quindi possibile ottenere due unità abitative distinte, una al piano terra ed una al primo piano. Attualmente al piano terra ci sono un soggiorno doppio con camino, la cucina abitabile, il bagno e la lavanderia, data l'ampia metratura è possibile dividere il soggiorno e ricavare la camera da letto. Al piano primo ci sono tre camere da letto, la cucina abitabile ed il bagno, è possibile sfruttare gli ambienti a proprio piacimento, utilizzando una camera per ampliare la zona giorno. Tra i punti forti di questa soluzione abitativa c'è lo spazio esterno di circa 200 mq che si sviluppa su tre lati ed è piastrellato nella parte frontale e laterale, invece sul retro è stato messo un forno a legna, un barbecue e una zona per il pranzo. Lateralmente è presente il posto auto, attualmente è stata montata una struttura rimuovibile per riparare l'auto. Nel complesso l'immobile si presenta in buone condizioni e necessiterebbe di qualche lavoro per essere adattato ad esigenze di tipo personale. Completa la proprietà il box auto all'interno del cortile privato.

Mostra tutto

Nelle vicinanze

Trasporto pubblico Trasporto pubblico
Trasporto pubblico
80 m
Ricariche auto elettriche Ricariche auto elettriche
Spino d'Adda | EnelX Rosselli
610 m
Spino d'Adda Ragazzi del '99 | EnelX
660 m
Centro Sportivo Comunale di Spino d'Adda | EnelX
1,6 Km
Scuole Scuole
Scuola media L. Chiesa
600 m
Supermercati Supermercati
Supermercati
1,2 Km
Ristoranti Ristoranti
La Kukkagna
2,4 Km
Ristoranti
2,7 Km
Mostra tutto

Caratteristiche

Rif.:
61119420
Piano:
2 di 2
Box:
1
Balconi:
2
Camere da letto:
3
Arredamento:
Assente
Mostra tutto
Prezzo Prezzo
€ 318.000
Rata mutuo Rata mutuo
€ 1.482 / mese
Spese annue Spese annue
€ 0
Proponi il tuo prezzoProponi il tuo prezzo

Classe Energetica

D
D
D
D
D
D
D
D
D
EP globale non rinnovabile:
93.14 kW h/m² anno
EP globale rinnovabile:
0.00 kW h/m² anno
EP invernale del fabbricato:
EP estiva del fabbricato:
Anno di costruzione:
2004
Riscaldamento:
Autonomo
Tipo impianto:
A stufa
Tipo alimentazione:
Altro

Ti interessa visionare l'immobile?

Fissa un appuntamento  Fissa un appuntamento

Richiedi informazioni

Clicca su Leggi per aprire l'informativa
* Questi campi sono obbligatori

Calcola il tuo mutuo

Semplice e senza impegno
Anticipo

( % )
Mutuo

( % )

pochi semplici passi

inserisci i tuoi dati
Questionario completato
Grazie per aver richiesto un appuntamento senza impegno con un nostro Consulente del Credito e Assicurativo.

Hai inserito correttamente tutti i dati necessari e a breve riceverai una e-mail con un link da convalidare per inviare i tuoi dati.
Affiliato
Tecnoteam Srl
Via Dante, 47 26839 Zelo Buon Persico (LO)
Via Dante, 47 26839 Zelo Buon Persico (LO)
Zona: Zelo B.P.-Merlino-Comazzo-Spino d'Adda-Boffalora D'Adda-Dovera
Mostra su mappa
Orari: dal lunedì al venerdì 09.00-12.30 e 14.30-20.30; sabato 9:00 -12:30 e 14:30 -18:00; domenica su appuntamento.
Affiliato
Tecnoteam Srl
Via Dante, 47 26839 Zelo Buon Persico (LO)

2025 Tecnocasa Franchising S.p.A. - P. IVA 08365160152 - Via Monte Bianco 60/A 20089 Rozzano (MI). Ogni agenzia ha un proprio titolare ed è autonoma. Privacy policy | Policy utilizzo | Cookie policy