Porzione di bifamiliare in vendita

Spino D'Adda, Via IV Novembre
€ 368.000
4 locali 4 locali
136 Mq 136 Mq
2 bagni 2 bagni

Porzione di bifamiliare in vendita

Spino D'Adda, Via IV Novembre

Descrizione annuncio

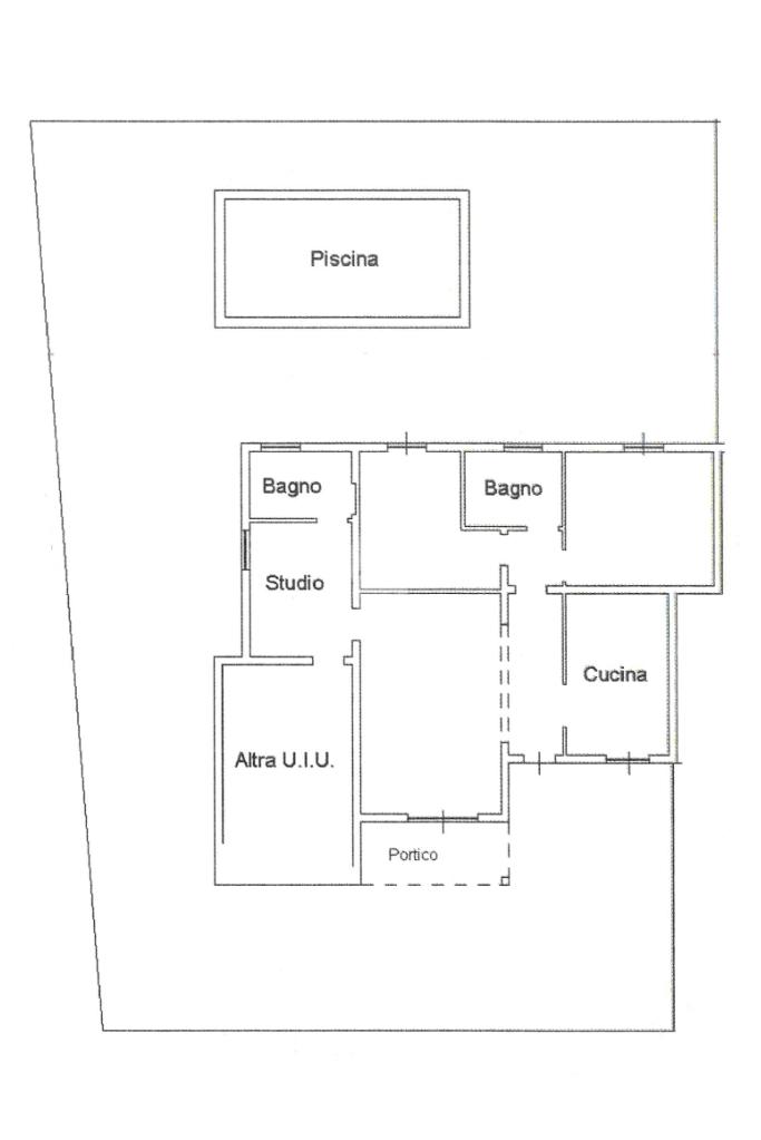
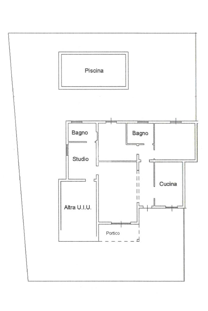
In una zona residenziale di sole villette e bassi caseggiati, tranquilla e ben abitata, in una via chiusa e quindi poco frequentata. Il centro del paese e le scuole sono raggiungibili anche a piedi. La villetta, libera su tre lati e distribuita su un unico livello abitativo è stata costruita nei primi anni'80 ed è stata ristrutturata nel 2021. Dotata di impianto fotovoltaico da 6Kw, impianto di aria condizionata, serramenti con doppi vetri e zanzariere, inferriate e parquet nelle camere. L'area esterna misura circa 270 Mq ed è certamente il punto di forza della villetta, nella parte frontale è presente un porticato in cui potersi rilassare nelle calde giornate estive, nella parte posteriore invece è presente una piscina interrata che misura 3 mt di larghezza per 6 mt di lunghezza ed è dotata di copertura rigida per la stagione invernale, inoltre vicino alla piscina sono presenti una doccia ed una casetta in legno per riporre attrezzi e giochi, a completare il giardino posteriore una pergola in legno e un barbecue. Internamente la casa è stata concepita lasciando spazio alla zona giorno, da un lato la cucina abitabile e dall'altro la sala da pranzo con il camino. Dalla sala si accede allo studio e al disimpegno che accompagna alla zona notte. Lo studio ha una posizione strategica perchè è collegato anche al box auto ed al bagno di servizio della zona giorno, inoltre potrebbe essere utilizzato come camera per gli ospiti o terza camera. Il bagno ha la doccia e la finestra. Nella zona notte ci sono due camere da letto, una matrimoniale ed una per ragazzi, e il bagno con la vasca. La casa è ben tenuta e non necessita di alcuna opera per essere abitata essendo stata recentemente ristrutturata. Il box auto si trova al piano strada ed collegato direttamente all'abitazione. Trattandosi di una soluzione abitativa ad alta efficienza energetica, in classe 'B', è possibile usufruire di mutui a tassi agevolati.

Mostra tutto

Nelle vicinanze

Trasporto pubblico Trasporto pubblico
Trasporto pubblico
380 m
Ricariche auto elettriche Ricariche auto elettriche
Spino d'Adda | EnelX Rosselli
360 m
Spino d'Adda Ragazzi del '99 | EnelX
730 m
Centro Sportivo Comunale di Spino d'Adda | EnelX
1,3 Km
Scuole Scuole
Scuola media L. Chiesa
620 m
Supermercati Supermercati
Supermercati
930 m
Ristoranti Ristoranti
Ristoranti
2,4 Km
La Kukkagna
2,6 Km
Mostra tutto

Caratteristiche

Rif.:
61166103
Piano:
Terra con giardino di 1
Totale piani:
1
Box:
1
Camere da letto:
3
Arredamento:
Assente
Mostra tutto
Prezzo Prezzo
€ 368.000
Rata mutuo Rata mutuo
€ 1.734 / mese
Spese annue Spese annue
€ 0
Proponi il tuo prezzoProponi il tuo prezzo

Classe Energetica

B
B
B
B
B
B
B
B
B
EP globale non rinnovabile:
114.62 kW h/m² anno
EP globale rinnovabile:
57.53 kW h/m² anno
EP invernale del fabbricato:
EP estiva del fabbricato:
Anno di costruzione:
1982
Riscaldamento:
Autonomo
Tipo impianto:
A radiatori
Tipo alimentazione:
Metano

Ti interessa visionare l'immobile?

Fissa un appuntamento  Fissa un appuntamento

Richiedi informazioni

Clicca su Leggi per aprire l'informativa
* Questi campi sono obbligatori

Calcola il tuo mutuo

Semplice e senza impegno
Anticipo

( % )
Mutuo

( % )

pochi semplici passi

inserisci i tuoi dati
Questionario completato
Grazie per aver richiesto un appuntamento senza impegno con un nostro Consulente del Credito e Assicurativo.

Hai inserito correttamente tutti i dati necessari e a breve riceverai una e-mail con un link da convalidare per inviare i tuoi dati.
Affiliato
Tecnoteam Srl
Via Dante, 47 26839 Zelo Buon Persico (LO)
Via Dante, 47 26839 Zelo Buon Persico (LO)
Zona: Zelo B.P.-Merlino-Comazzo-Spino d'Adda-Boffalora D'Adda-Dovera
Mostra su mappa
Orari: dal lunedì al venerdì 09.00-12.30 e 14.30-20.30; sabato 9:00 -12:30 e 14:30 -18:00; domenica su appuntamento.
Affiliato
Tecnoteam Srl
Via Dante, 47 26839 Zelo Buon Persico (LO)

2026 Tecnocasa Franchising S.p.A. - P. IVA 08365160152 - Via Monte Bianco 60/A 20089 Rozzano (MI). Ogni agenzia ha un proprio titolare ed è autonoma. Privacy policy | Policy utilizzo | Cookie policy