Villa singola in vendita

Spino D'Adda, Via Bordiga
€ 338.000
4 locali 4 locali
210 Mq 210 Mq
2 bagni 2 bagni

Villa singola in vendita

Spino D'Adda, Via Bordiga

Descrizione annuncio

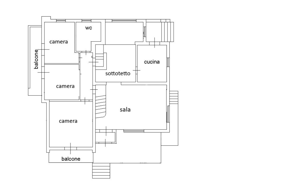
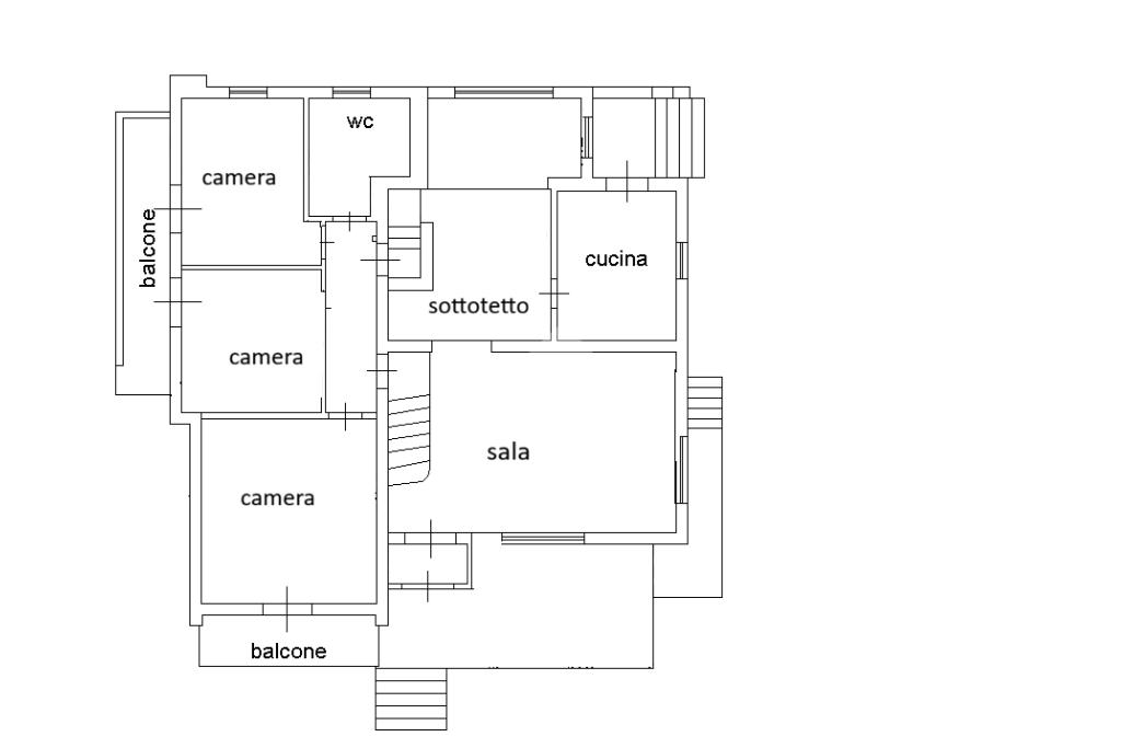
Al 'Villaggio Europa', circondata dal giardino privato di 450 mq, questa villa costruita negli anni '70 e libera subito è appena stata imbiancata e risistemata. Dotata di serramenti in legno e parquet in tutte le stanze, è elegante e luminosa, al suo interno la zona giorno e la zona notte sono separate da un dislivello di qualche gradino, un gioco di altezze che cra movimento mantendendo praticità e riservatezza. Dal piano strada un vialetto accompagna ai gradini davanti al portoncino d'ingresso, dove si trova il terrazzo di 20 mq. L'ingresso è nella sala da pranzo con stufa a pellet, dalla sala si accede alla cucina abitabile, alla zona notte e al piano seminterrato in cui ci sono la tevernetta con bagno/lavanderia ed il box auto. Nella zona notte ci sono tre camere da letto , un bagno e un sottotetto che può essere utilizzato come studio o locale-hobby. Sicuramente il punto di forza di questa soluzione è l'ampio giardino esposto a sud, con la possibilità di mettere una piscina interrata.

Mostra tutto

Nelle vicinanze

Trasporto pubblico Trasporto pubblico
Trasporto pubblico
270 m
Ricariche auto elettriche Ricariche auto elettriche
Spino d'Adda Ragazzi del '99 | EnelX
480 m
Spino d'Adda | EnelX Rosselli
580 m
Centro Sportivo Comunale di Spino d'Adda | EnelX
1,5 Km
Scuole Scuole
Scuola media L. Chiesa
440 m
Supermercati Supermercati
Supermercati
1,1 Km
Ristoranti Ristoranti
La Kukkagna
2,5 Km
Ristoranti
2,6 Km
Mostra tutto

Caratteristiche

Rif.:
61171782
Piano:
Terra con giardino di 2
Totale piani:
2
Box:
1
Terrazzi:
1
Camere da letto:
3
Mostra tutto
Prezzo Prezzo
€ 338.000
Rata mutuo Rata mutuo
€ 1.593 / mese
Spese annue Spese annue
€ 0
Proponi il tuo prezzoProponi il tuo prezzo

Classe Energetica

E
E
E
E
E
E
E
E
E
EP globale non rinnovabile:
282.42 kW h/m² anno
EP globale rinnovabile:
2.17 kW h/m² anno
EP invernale del fabbricato:
EP estiva del fabbricato:
Anno di costruzione:
1970
Riscaldamento:
Autonomo
Tipo impianto:
A radiatori
Tipo alimentazione:
Metano

Ti interessa visionare l'immobile?

Fissa un appuntamento  Fissa un appuntamento

Richiedi informazioni

Clicca su Leggi per aprire l'informativa
* Questi campi sono obbligatori

Calcola il tuo mutuo

Semplice e senza impegno
Anticipo

( % )
Mutuo

( % )

pochi semplici passi

inserisci i tuoi dati
Questionario completato
Grazie per aver richiesto un appuntamento senza impegno con un nostro Consulente del Credito e Assicurativo.

Hai inserito correttamente tutti i dati necessari e a breve riceverai una e-mail con un link da convalidare per inviare i tuoi dati.
Affiliato
Tecnoteam Srl
Via Dante, 47 26839 Zelo Buon Persico (LO)

Il nostro staff


  • Fulvio Cattolico
    Affiliato

  • Laura Capizzi
    Coordinatrice

  • Marco D'Esposito
    Collaboratore

  • Nancy Cariglino
    Coordinatrice

  • Mercurio Castrogiovanni
    Collaboratore

  • Cinzia Aguggini
    Coordinatrice

  • Federico Asti
    Collaboratore
Via Dante, 47 26839 Zelo Buon Persico (LO)
Zona: Zelo B.P.-Merlino-Comazzo-Spino d'Adda-Boffalora D'Adda-Dovera
Mostra su mappa
Orari: dal lunedì al venerdì 09.00-12.30 e 14.30-20.30; sabato 9:00 -12:30 e 14:30 -18:00; domenica su appuntamento.
Affiliato
Tecnoteam Srl
Via Dante, 47 26839 Zelo Buon Persico (LO)

2026 Tecnocasa Franchising S.p.A. - P. IVA 08365160152 - Via Monte Bianco 60/A 20089 Rozzano (MI). Ogni agenzia ha un proprio titolare ed è autonoma. Privacy policy | Policy utilizzo | Cookie policy