Quadrilocale in vendita

Zelo Buon Persico, Piazza don bernardelli - Mignete
€ 225.000
4 locali 4 locali
150 Mq 150 Mq
2 bagni 2 bagni

Quadrilocale in vendita

Zelo Buon Persico, Piazza don bernardelli - Mignete

Descrizione annuncio

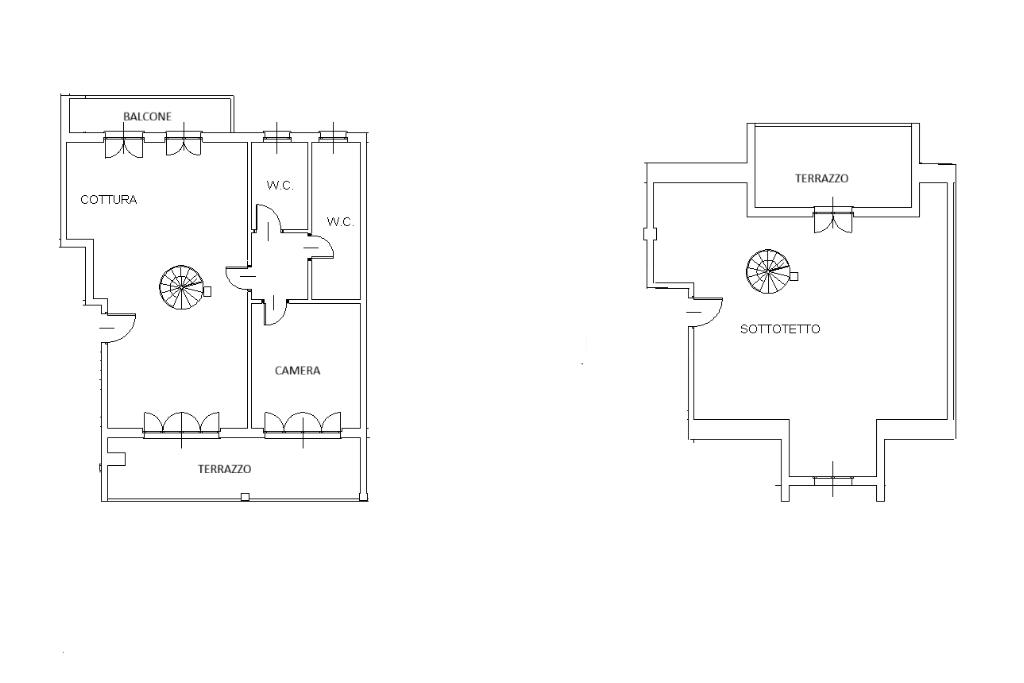
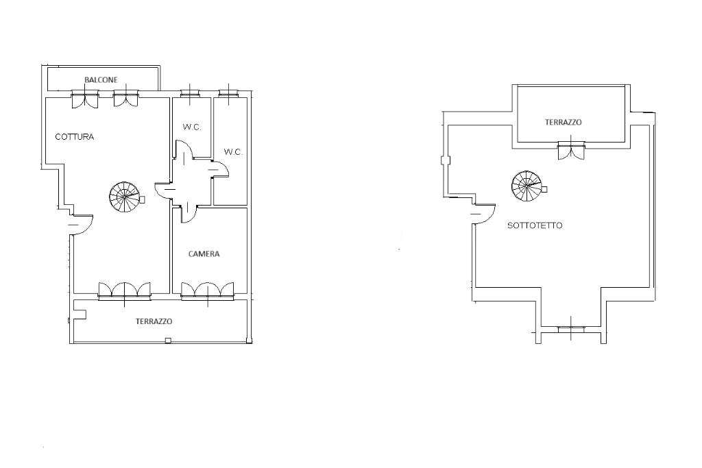
Mignete, a pochi minuti di auto dal centro di Zelo, in una zona tranquilla e davanti al Parco Adda Sud ed alla pista ciclabile. L'appartamento si trova al secondo ed ultimo piano di una palazzina costruita nel 2002 e ben tenuta nelle parti comuni. Si tratta di una soluzione su due livelli e dotata di doppio ingresso, uno al secondo piano ed uno al piano mansardato. L'ingresso al secondo piano è nella zona living , da un lato ci sono la cucina a vista e la zona da pranzo, dall'altro il salone con portafinestra che dà accesso al terrazzo loggiato di 16 mq , sullo stesso piano si trovano la camera da letto matrimoniale, il bagno con la vasca ed un secondo bagno di servizio con la doccia ad uso lavanderia. Al piano mansardato attualmente si trova un unico locale con lavanderia, diviso in aree dedicate alla lettura, al lavoro o al relax con divano e tv, inoltre è presente la portafinestra che dà accesso al terrazzino di 14 mq , la metratura permette di ricavare due camere da letto. E' presente la predisposizione per l'impianto di aria condizionata e i serramenti sono in legno con doppi vetri e zanzariere. Completano la proprietà la cantina e il box auto.

Mostra tutto

Nelle vicinanze

Ricariche auto elettriche Ricariche auto elettriche
U2 Supermercato | EnelX
2,7 Km
Scuole Scuole
Scuola media Carlo Cattaneo
1,7 Km
Scuola elementare Franco Marmont Du Haut Champ
2,2 Km
Farmacia Farmacia
Mortari Tullio
2,0 Km
Supermercati Supermercati
MD Discount
1,9 Km
Ristoranti Ristoranti
Ristoranti
1,3 Km
Mostra tutto

Caratteristiche

Rif.:
61139898
Piano:
2 di 3 con ascensore (Piano su più livelli)
Box:
1
Balconi:
1
Terrazzi:
2
Camere da letto:
2
Mostra tutto
Prezzo Prezzo
€ 225.000
Rata mutuo Rata mutuo
€ 1.061 / mese
Spese annue Spese annue
€ 1.500
Proponi il tuo prezzoProponi il tuo prezzo

Classe Energetica

D
D
D
D
D
D
D
D
D
EP globale non rinnovabile:
172.01 kW h/m² anno
EP globale rinnovabile:
0.00 kW h/m² anno
EP invernale del fabbricato:
EP estiva del fabbricato:
Anno di costruzione:
2002
Riscaldamento:
Autonomo
Tipo impianto:
A radiatori
Tipo alimentazione:
Metano

Ti interessa visionare l'immobile?

Fissa un appuntamento  Fissa un appuntamento

Richiedi informazioni

Clicca su Leggi per aprire l'informativa
* Questi campi sono obbligatori

Calcola il tuo mutuo

Semplice e senza impegno
Anticipo

( % )
Mutuo

( % )

pochi semplici passi

inserisci i tuoi dati
Questionario completato
Grazie per aver richiesto un appuntamento senza impegno con un nostro Consulente del Credito e Assicurativo.

Hai inserito correttamente tutti i dati necessari e a breve riceverai una e-mail con un link da convalidare per inviare i tuoi dati.
Affiliato
Tecnoteam Srl
Via Dante, 47 26839 Zelo Buon Persico (LO)

Il nostro staff


  • Fulvio Cattolico
    Affiliato

  • Laura Capizzi
    Coordinatrice

  • Marco D'Esposito
    Collaboratore

  • Nancy Cariglino
    Coordinatrice

  • Mercurio Castrogiovanni
    Collaboratore

  • Cinzia Aguggini
    Coordinatrice

  • Federico Asti
    Collaboratore
Via Dante, 47 26839 Zelo Buon Persico (LO)
Zona: Zelo B.P.-Merlino-Comazzo-Spino d'Adda-Boffalora D'Adda-Dovera
Mostra su mappa
Orari: dal lunedì al venerdì 09.00-12.30 e 14.30-20.30; sabato 9:00 -12:30 e 14:30 -18:00; domenica su appuntamento.
Affiliato
Tecnoteam Srl
Via Dante, 47 26839 Zelo Buon Persico (LO)

2026 Tecnocasa Franchising S.p.A. - P. IVA 08365160152 - Via Monte Bianco 60/A 20089 Rozzano (MI). Ogni agenzia ha un proprio titolare ed è autonoma. Privacy policy | Policy utilizzo | Cookie policy