Villa singola in vendita

Zelo Buon Persico, Via Manzoni
€ 170.000
4 locali 4 locali
150 Mq 150 Mq
2 bagni 2 bagni

Villa singola in vendita

Zelo Buon Persico, Via Manzoni

Descrizione annuncio

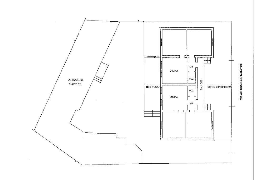
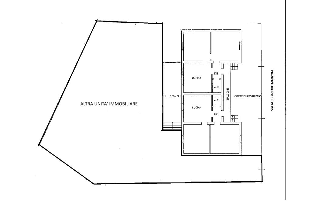
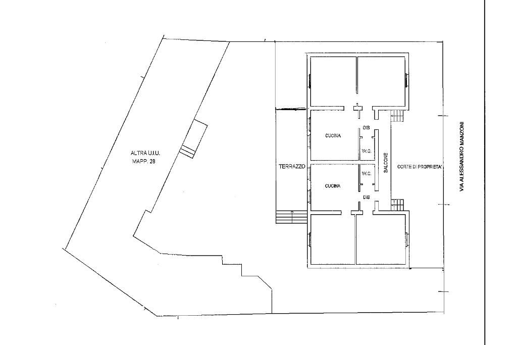
In una via del centro di Zelo, la zona è molto tranquilla e ci sono villette e basse costruzioni, tutti i servizi sono raggiungibili a piedi. La villa è stata costruita negli anni'50 ed è totalmente da ristrutturare. Attualmente è suddivisa in due bilocali da circa 70 mq ciascuno, ognuno con il proprio ingresso, perciò è possibile unirli e creare un'appartamento unico oppure per chi necessita di avere uno spazio dedicato al lavoro per l'esercizio della libera professione si potrebbero avere un'appartamento e uno studio sfruttando il doppio ingresso già presente e la metratura. Inoltre sono presenti un giardino privato, un terrazzo frontale ed uno posteriore, entrambi sfruttabili. Trattandosi di una soluzione da ristrutturare a livello interno è tutto da rifare, materiali e distribuizione degli spazi andranno personalizzati in base a gusti ed esigenze.

Mostra tutto

Nelle vicinanze

Trasporto pubblico Trasporto pubblico
Trasporto pubblico
1,5 Km
Scuolabus
Scuolabus
3,0 Km
Ricariche auto elettriche Ricariche auto elettriche
U2 Supermercato | EnelX
610 m
Scuole Scuole
Scuola media Carlo Cattaneo
490 m
Campus scolastico
2,0 Km
Scuole
2,1 Km
Scuola Elementare
2,2 Km
Scuole Elementari
2,6 Km
Farmacia Farmacia
Mortari Tullio
190 m
Farmacia
2,8 Km
Supermercati Supermercati
MD Discount
820 m
Supermercati
2,2 Km
Negozi Negozi
Negozi
2,4 Km
COOP
2,4 Km
Bar Bar
Bar
2,1 Km
Ristoranti Ristoranti
Ristoranti
1,8 Km
Trattoria dei Cacciatori
1,8 Km
Bar Tabacchi e Ristorante Pizzeria
2,3 Km
Adda Lido di Albasi Paolo
2,6 Km
Trattoria dei cacciatori
2,8 Km
Mostra tutto

Caratteristiche

Rif.:
61139203
Piano:
Terra di 1
Totale piani:
1
Terrazzi:
2
Camere da letto:
2
Arredamento:
Assente
Mostra tutto
Prezzo Prezzo
€ 170.000
Rata mutuo Rata mutuo
€ 801 / mese
Spese annue Spese annue
€ 0
Proponi il tuo prezzoProponi il tuo prezzo

Classe Energetica

Questo immobile è esente da classe energetica
Anno di costruzione:
1950
Riscaldamento:
Assente

Ti interessa visionare l'immobile?

Fissa un appuntamento  Fissa un appuntamento

Richiedi informazioni

Clicca su Leggi per aprire l'informativa
* Questi campi sono obbligatori

Calcola il tuo mutuo

Semplice e senza impegno
Anticipo

( % )
Mutuo

( % )

pochi semplici passi

inserisci i tuoi dati
Questionario completato
Grazie per aver richiesto un appuntamento senza impegno con un nostro Consulente del Credito e Assicurativo.

Hai inserito correttamente tutti i dati necessari e a breve riceverai una e-mail con un link da convalidare per inviare i tuoi dati.
Affiliato
Tecnoteam Srl
Via Dante, 47 26839 Zelo Buon Persico (LO)

Il nostro staff


  • Fulvio Cattolico
    Affiliato

  • Laura Capizzi
    Coordinatrice

  • Marco D'Esposito
    Collaboratore

  • Nancy Cariglino
    Coordinatrice

  • Mercurio Castrogiovanni
    Collaboratore

  • Cinzia Aguggini
    Coordinatrice

  • Federico Asti
    Collaboratore
Via Dante, 47 26839 Zelo Buon Persico (LO)
Zona: Zelo B.P.-Merlino-Comazzo-Spino d'Adda-Boffalora D'Adda-Dovera
Mostra su mappa
Orari: dal lunedì al venerdì 09.00-12.30 e 14.30-20.30; sabato 9:00 -12:30 e 14:30 -18:00; domenica su appuntamento.
Affiliato
Tecnoteam Srl
Via Dante, 47 26839 Zelo Buon Persico (LO)

2026 Tecnocasa Franchising S.p.A. - P. IVA 08365160152 - Via Monte Bianco 60/A 20089 Rozzano (MI). Ogni agenzia ha un proprio titolare ed è autonoma. Privacy policy | Policy utilizzo | Cookie policy